Description
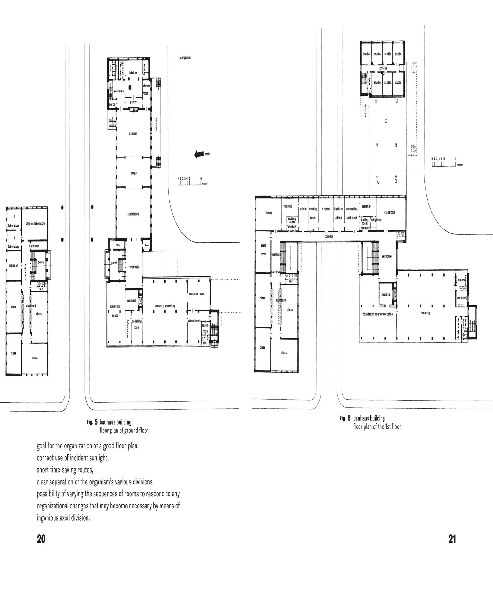
In his third and last contribution within the Bauhausbücher series, the founder and long-standing director of the Bauhaus, Walter Gropius, gives a comprehensive overview of the Bauhaus in Dessau. In addition to a brief outline of the origins and development of the school, Gropius presents the architectural design of the new Bauhaus building and the associated Masters’ Houses with the help of photographic documentary evidence and planning sketches. In the book, he traces the technical planning development with extreme precision and provides an insight into the design practice of the “Bauhäusler.
The series is published with the generous support of the Rudolf-August Oetker-Stiftung.
Details
- Author(s): Walter Gropius
- Edited by Walter Gropius, László Moholy-Nagy (original series), Lars Müller (English edition) in collaboration with -Bauhaus-Archiv / Museum für Gestaltung
- Design: László Moholy-Nagy (original German edition)
- 18 × 23 cm, 7 × 9 in
- 224 pages, 203 illustrations
- hardback
Related products
Bauhaus Journal 1926-1931
Bauhaus Museum Weimar
Who lives in white cubes?